Compartir: Whatsapp - facebook - Correo eletrónico
Características


Ubicación: Mérida, Yucatán

Colonia: Montes De Ame

Precio: $ 14,000.00 MXN

Tipo de propiedad: Local comercial

Operación: Renta

Folio: 5726

Detalles


m² construcción: 50
m² terreno: 45
Medios baños: 1
Plantas: 1
Ficha técnica - Ficha técnica (+Asesor)



Descripción


Locales ubicados sobre calle transitada en zona norte de la ciudad, a 2 cuadras del Centro Educativo Piaget.
Situada en la misma avenida de complejos como: San Angelo, Baltia y Town Square.


Interior


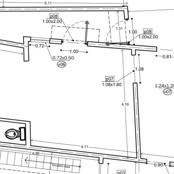
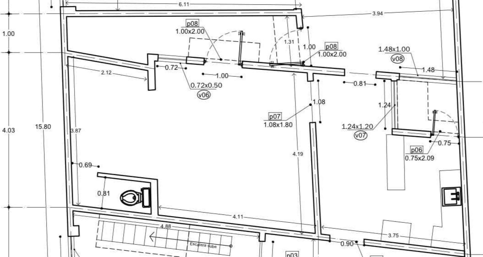
DISPONIBLE LOCAL 2:
Espacio abierto: 4m x 6m
Medio baño
Cocineta al fondo: 4m x 3.75m
Cubo de luz: de 1.48 x 1.24
Pasillo de servicio interno: 1m x 6m.

Exterior


Calle de alto flujo vehícular
Fachada de cemento pulido
Puerta de cristal de acceso principal
Espacio para anuncio en el exterior.

Información adicional


Se puede facturar + IVA.

Se pueden realizar adecuaciones de acuerdo al giro comercial (corren por cuenta del ocupante).

Las medidas pueden variar ya que el terreno es irregular (se adjunta foto de plano con medidas).

Formas y planes de pago



CONDICIONES DE RENTA:
1 mes de renta
1 mes de depósito
Aval con propiedad en Yucatán (no es necesario que esté libre de gravamen).
Se firma un pagaré adicional en garantía.

Aviso de privacidad: https://grupotosc.com/aviso-de-privacidad
El precio total se determinará en función de los montos variables de conceptos de crédito y notariales que deben ser consultados con los promotores de conformidad con lo establacido en la NOM-247-SE-2021.

Datos del asesor


Vania Oropeza

Asesor Inmobiliario

vania@grupotosc.com

9993864030

Mis propiedades

Por esta vía podrás dejarnos tus comentarios, dudas, reclamos o sugerencias.