Compartir: Whatsapp - facebook - Correo eletrónico
Características


Ubicación: Mérida, Yucatán

Colonia: Garcia Gineres

Precio: $ 15,000.00 MXN

Tipo de propiedad: Local comercial

Operación: Renta

Folio: 5599

Detalles


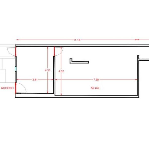
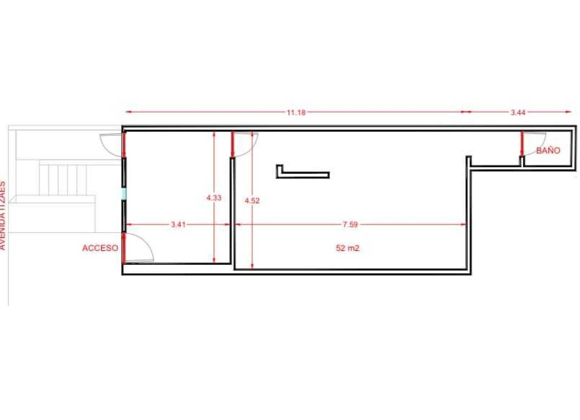
m² construcción: 52
Medios baños: 1
Plazas de estacionamiento: 1
Plantas: 1
Ficha técnica - Ficha técnica (+Asesor)



Descripción


Local para CONSULTORIO médico, nutriólogos, fisioterapia o rehabilitación o de la salud.
A media cuadra de la Clínica Mérida.


Interior


UBICADO EN PLANTA BAJA:
Medidas: 4.52 x 11.8
Medio baño
Sección 1: Recepción/ sala de espera
Sección 2: Consultorio.

Exterior


Estacionamiento incluido para clientes a 20 metros.
Sobre avenida con bastante afluencia.

Información adicional


*FACTURA + IMPUESTOS
*Los servicios son por aparte.

RESTRICCIONES:
No se permite giro para Oftalmólogo o clínica oftalmológica, para evitar repetir giro con local a un costado.


Formas y planes de pago


CONDICIONES DE RENTA:
1 mes de renta
1 mes de depósito
Pago de convenio
Aval con propiedad libre de gravamen en Yucatán.

Aviso de privacidad: https://grupotosc.com/aviso-de-privacidad
El precio total se determinará en función de los montos variables de conceptos de crédito y notariales que deben ser consultados con los promotores de conformidad con lo establacido en la NOM-247-SE-2021.

Datos del asesor


Vania Oropeza

Asesor Inmobiliario

vania@grupotosc.com

9993864030

Mis propiedades

Por esta vía podrás dejarnos tus comentarios, dudas, reclamos o sugerencias.